Salle polyvalente - Saint Martin-le-Châtel
La commune met la salle des fêtes à la disposition des habitants et des associations de St-Martin-le-Châtel.
La salle polyvalente est en travaux jusqu'au printemps 2020, et donc fermée au public (la capacité d'accueil sera augmentée et les tarifs révisés)
-

Crédit : Saint Martin le Châtel - Mairie
-

Crédit : Saint Martin le Châtel - Mairie
-

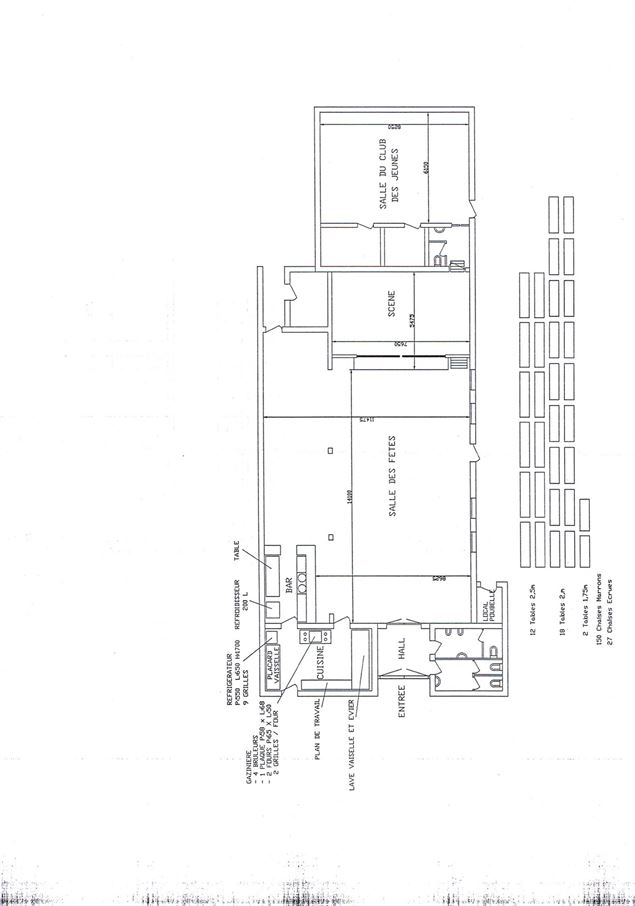
Crédit : Plan de la salle - Mairie
La commune met à la disposition des habitants et des associations de Saint-Martin-le-Châtel : la salle des fêtes.
Projet de rénovation de la salle :
Rénovation/extension de la salle polyvalente de Saint-Martin-le-Châtel, comprenant une salle multifonctions, un espace bar, un hall d'entrée avec sanitaires, une cuisine, un espace de rangement, un local entretien, un préau, et une salle associative avec kitchenette.
Réception des travaux prévue au printemps 2020. N’hésitez pas à consulter le secrétariat de Mairie pour les disponibilités et tarifs.
Informations pratiques
Quel prix ?
Tarifs sur demande.
Où ?
route de saint didier
01310 Saint-Martin-le-Châtel Plan d'accès
Commentaires